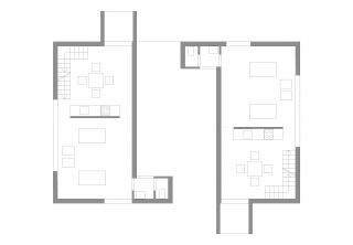
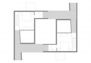
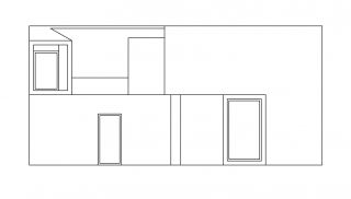
casa galluffo
Due identici corpi di fabbrica contrapposti che appoggiandosi l’uno all’altro formano un organismo architettonico “complesso”, che stabilisce le dimensioni dei percorsi, dei terrazzi del cortile interno. L’edificio osservato di volta in volta da nuovi punti di vista appare sempre diverso.











