casa mustazza
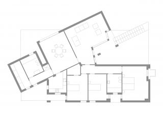
L’edificio si articola in quattro volumi che muovendosi determinano gli spazi interni. Ogni volume ha una sua destinazione d’uso. La dislocazione planimetrica e la composizione complessa dell’edificio è dettata dalla forma irregolare dell’area collocata in zona periferica. Lo studio del progetto è risultato particolarmente faticoso e difficile perché il piano seminterrato doveva avere una superficie molto più ampia del piano superiore visto che era destinato ad autorimessa per tre grandi autocisterne.












