casa pirrone culcasi
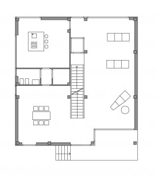
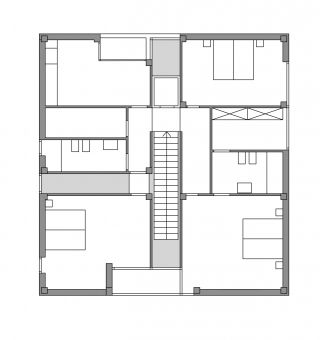
L’edificio doveva rispettare il vincolo che imponeva di non modificare l’ingombro planimetrico e la sagoma assentiti attraverso un piano di lottizzazione comunale. Abbiamo quindi progettato un volume unico scomposto in tre blocchi volumetrici, con struttura portante indipendente, separati l’uno dall’altro. Due blocchi sono sospesi sul piano terra, mentre il terzo dal piano terra si estende fino al piano primo. In corrispondenza degli stacchi tra l’uno e l’altro si ritagliano le aperture sulle facciate e sul solaio di copertura, da dove precipita verso l’interno, rafforzando ancora di più la separazione dei volumi, una grande quantità di luce. I tre blocchi oltre a definire gli spazi interni, stabiliscono il disegno delle facciate esterne. L’esterno e l’interno quindi possono essere letti contemporaneamente.















