casa sammartano
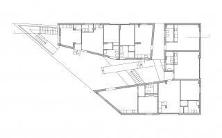
L’edificio da realizzare a mt 300 dalla battigia, su di una parte di territorio urbanizzata da interventi non regolati da strumenti urbanistici, ha una planimetria di forma trapezoidale dovuta all’andamento della linea che delimita la fascia di rispetto inedificabile dalla battigia. L’edificio è un volume unico che si scompone in due grandi braccia che si uniscono sovrapponendosi, dando forma ai terrazzi, agli spazi coperti, al cortile interno. La complessità geometrica del disegno ci restituisce un edificio apparentemente introverso. L’articolazione dei volumi, dei percorsi, nonché le grandi aperture, individuano le visuali prospettiche del paesaggio marino, che diviene parte integrante dell’opera.














