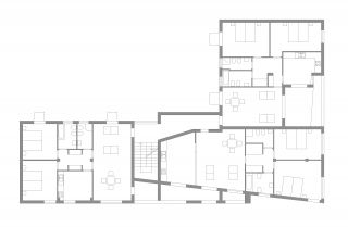
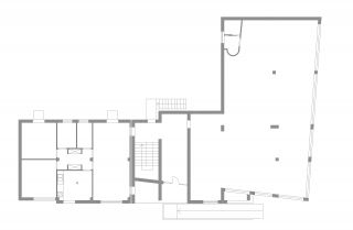
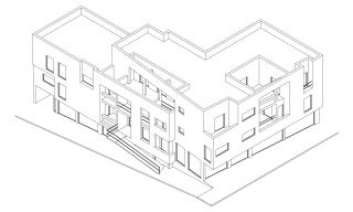
casa vultaggio
È un edificio d’angolo multipiano per abitazione, collocato all’interno del centro urbano. L’edificio prospetta su due strade: quella principale, pianeggiante, e quella secondaria a forte pendenza, da dove si accede all’edificio per mezzo di una rampa in acciaio. L’edificio non presenta fronti principali né vuole rafforzare la sua posizione d’angolo con retoriche invenzioni progettuali. La difficile collazione d’angolo viene risolta attraverso la progettazione di volumi di diversa altezza che si compenetrano, quello più basso posizionato sulla via a forte pendenza, quello più alto posizionato sulla via ad andamento pianeggiante.








