casa zacco

casa zacco

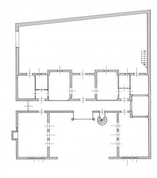
Edificio per abitazione a pianta simmetrica composto da volumi semplici allineati lungo un alto muro perimetrale. L’edificio realizzato in blocchi di calcarenite di Favignana è caratterizzato verso l’esterno unicamente dal suo grande muro che diventa facciata.