edificio industriale per imbottigliamento
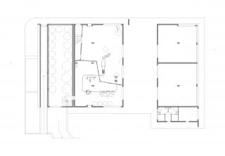
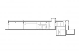
Il nuovo edificio industriale destinato all'imbottigliamento dell'olio è stato commissionato dall'"Azienda Agricola Fontanasalsa" di Trapani per fronteggiare le esigenze del mercato interno ma soprattutto internazionale a cui l'azienda si riferisce per commercializzare la sua produzione di olio di alta qualità. L'edificio è stato realizzato su di un fondo agricolo di 41 ettari all'interno del quale ricade un vecchio edificio rurale destinato a frantoio. Il nuovo edificio risulta indispensabile per controllare e completare il ciclo produttivo che va dalla coltivazione degli alberi di ulivo, alla raccolta del prodotto, alla sua molitura, all'imbottigliamento ed infine all'imballaggio ed allo stoccaggio. Quindi tutto il processo produttivo inizia e si completa all'interno dell'azienda agricola. La planimetria dell'edificio è dimensionata secondo i moduli della maglia (5.00 x 5.50) che regola le coltivazioni ad uliveto.


































