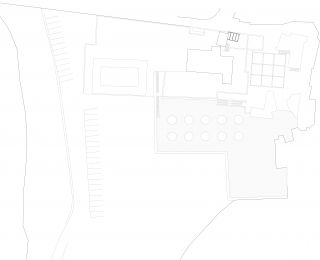
hotel delle cave
La struttura ricettiva è composta da più edifici collocati a quota mt 0.00 ed a quota mt -12.30 all’interno di una cava di calcarenite abbandonata di circa mq 13.000,00. La cava presenta dei grossi muri emergenti dal piano di cava (spessori di circa mt 3.00 ed oltre) risultati del processo di escavazione che si è protratto negli ultimi ottanta anni.
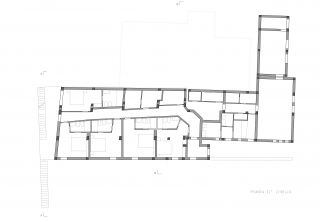
Il progetto consiste nella realizzazione nell'isola di Favignana (TP) di una struttura ricettiva-alberghiera attraverso il recupero e la riconversione di una cava ipogea di calcarenite, di una vecchia centrale elettrica entrambe dismesse nel 1969 e la costruzione di un nuovo corpo di fabbrica ipogeo in aderenza alla centrale elettrica. La fase di recupero risulta molto lunga e complessa ed ha affrontato in primo luogo la messa in sicurezza, il restauro ed il consolidamento statico delle pareti della cava e della centrale elettrica. Successivamente sono stati avviati i lavori per il nuovo corpo di fabbrica ipogeo. I lavori subiscono diverse interruzioni per essere ultimati definitivamente nel 2016. L'area escavata, posta ad una quota di mt. 11,00 al di sotto del piano di campagna, ha una estensione di mq. 2.200,00 circa, mentre l'edificio della centrale elettrica che si sviluppa su due elevazioni fuori terra ha una superficie coperta di mq. 250,00. L’edifico ipogeo in ampliamento ha una superficie coperta di mq. 350,00 circa. Il particolare contesto ambientale ha richiesto un progetto a bassa tecnologia con l'impiego di materiali adeguati a sostenere una profonda relazione con il luogo e con il clima torrido dell'isola. Il blocco di calcarenite “faccia-vista” risulta quindi l'unico materiale utilizzato per la costruzione dell'edificio in ampliamento e il restauro della centrale elettrica. Si è voluto realizzare quindi un intervento per giustapposizione di componenti, analoghi per materiale e disegno, strettamente connesso alla cava dismessa e che suggerisce la lettura di un edificio "interrotto" o in fase di completamento.

































